C2F(VSSJAF)型雙法蘭傳力接頭是由法蘭松套伸縮接頭和短管法蘭,傳力螺桿等構件組成,能降低被連接件的壓力推力(盲板力)和補償管路安裝誤差。雙法蘭傳力接主要用于泵、閥門等附件的松套連接。 C2F(VSSJAF)型雙法蘭傳力接頭適用于輸送海水、淡水、冷熱水、飲用水、生活污水、原油、燃油、潤滑油、成品油、空氣、煤氣、溫度不高于250度的蒸汽和顆粒粉狀等介質。
【產品名稱】:C2F(VSSJAF)型雙法蘭傳力接頭(C2F雙法蘭松套傳力補償接頭)
【產品別名】:雙法蘭伸縮器 雙法蘭傳力接頭
【產品規格】:【DN32mm-DN4000mm】
【產品壓力】:0.6-2.5MPa
【產品】:
【適用范圍】:【弱酸、弱堿、弱腐蝕類、油、熱水、冷水等】
【產品材質】:碳鋼,球墨鑄鐵,不銹鋼.
【產品顏色】:藍色,可根據客戶要求調色.
【工作溫度】:-40度至80度
在線咨詢
購買熱線: 021-622-00727
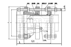
雙法蘭傳力接頭:由本體,密封圈,壓蓋,伸縮短管等主要部件組成。該產品適用于兩邊均為法蘭連接的管道中,安裝時調節產品兩端的法蘭的安裝長度,對角均勻擰緊壓蓋螺栓,使其成為一個整體,并有一定的調節量,方便安裝維修時,根據現場尺寸進行調整。在工作時可以反軸向推力傳遞至整個管道。適用于輸送海水、淡水、冷熱水、飲用水、生活污水、原油、燃油、潤滑油、成品油、空氣、煤氣、溫度不高于250度的蒸汽和顆粒粉狀等介質。
雙法蘭傳力接頭是由法蘭松套伸縮接頭和短管法蘭,傳力螺桿等構件組成,能降低被連接件的壓力推力(盲板力)和補償管路安裝誤差。雙法蘭傳力接主要用于泵、閥門等附件的松套連接。
1兩端均為法蘭連接,安裝方便快捷。
2能夠將軸向推力傳至整個管線,平攤壓力。
3方便泵閥的拆裝與維護。
華東理工大學和首鋼集團等承擔的~科技支撐計劃項目大中型海水淡化產業化技術研發及應用5萬噸/天水電聯產與熱膜耦合研發及示范研究,日前在京啟動。
由于現有技術的局限性,海水淡化過程中產生的大量濃鹽水無法得到進一步利用,不僅浪費寶貴的海洋資源,而且可能引起新的環境污染,特別是對環渤海半封閉海域生態環境的影響尤為突出。華東理工大學鹽湖中心負責人于建國介紹說。
據了解,在該項目中,鹽湖中心將負責海水淡化濃鹽水綜合利用技術研究及工程示范建設工作。中心將采用化學法和膜法綜合工藝,對濃海水中鈣、鎂等關鍵硬度元素進行高效分離,制備高附加值無機功能材料;經過二次淡化大幅提升淡水回收率,深度濃縮海水,制備液體鹽原料,供給純堿工業;通過中試研究和技術集成,形成淡水、液體鹽、鎂基系列產品(工業氫氧化鎂、阻燃劑氫氧化鎂、碳酸鎂、水滑石等)、溴素及碳酸鈣等有價元素整體利用系統,實現零排放。
對于整個項目工程鋪設,上海駱盈的雙法蘭限位傳力接頭起到了非常重要的作用,雙法蘭傳力接頭安裝在管道線路上能夠將震源附近的振動反傳至整條管道,從而達到均衡軸向推力的效果,進一步保障了管道的正常運行。上海駱盈作為專業的傳力接頭生產廠家,產品質量經得起實踐的檢驗。聯系電話:021-62212627.

請點擊圖片看大圖
| 序號No | 名稱Name | 數量Quantity | 材料Material |
| 1 | 本體Body | 1 | QT400-15,Q235A,ZG230-450,20 |
| 2 | 密封圈Gasket | 1 | NBR |
| 3 | 壓蓋Follower | 1 | QT400-15,Q235A,ZG230-450,20 |
| 4 | 短管法蘭Limited short pipe | 1 | Q235A,20,16Mn |
| 5 | 螺柱bolt | n | Q235A,35,1Cr8Ni9Ti |
| 6 | 螺母Nut | 5n | Q235A,20,1Cr8Ni9Ti |
請點擊圖片看大圖
| 公稱通徑Nominal Diameter DN | 管子外徑External diameter of pipe Dw | 外形尺寸 | 法蘭連接尺寸Flange connecting dimension | ||||||||
| 0.6Mpa | 1.0Mpa | ||||||||||
| L | △ | D | D1 | n-Th | b | D | D1 | n-Th | b | ||
| 65 | 76 | 200 | 20 | 160 | 130 | 4-M12 | 16 | 185 | 145 | 8-M16 |
20 |
| 80 | 89 | 190 | 150 | 4-M16 | 18 | 200 | 160 | 22 | |||
| 100 | 114 | 210 | 170 | 220 | 180 | 24 | |||||
| 125 | 140 | 240 | 200 | 8-M16 | 20 | 250 | 210 | 26 | |||
| 150 | 168 | 265 | 225 | 285 | 240 | 8-M20 | |||||
| 200 | 219 | 320 | 280 | 22 | 340 | 295 | 28 | ||||
| 250 | 273 | 375 | 335 | 12-M16 | 24 | 395 | 350 | 12-M20 | |||
| 300 | 325 | 220 | 25 | 440 | 395 | 12-M20 | 24 | 445 | 400 | ||
| 350 | 377 | 490 | 445 | 26 | 505 | 460 | 16-M20 | 30 | |||
| 400 | 426 | 540 | 495 | 12-M20 | 28 | 565 | 515 | 16-M24 | 32 | ||
| 450 | 480 | 595 | 550 | 28 | 615 | 565 | 20-M24 | 32 | |||
| 500 | 530 | 645 | 600 | 20-M20 | 30 | 670 | 620 | 20-M24 | 34 | ||
| 600 | 630 | 240 | 755 | 705 | 20-M24 | 30 | 780 | 725 | 24-M27 | 36 | |
| 700 | 720 | 860 | 810 | 24-M24 | 32 | 895 | 840 | 24-M30 | 40 | ||
| 800 | 820 | 350 | 30 | 975 | 920 | 24-M27 | 34 | 1015 | 950 | 28-M30 | 44 |
| 900 | 920 | 1075 | 1020 | 24-M27 | 36 | 1115 | 1050 | 28-M33 | 46 | ||
| 1000 | 1020 | 1175 | 1120 | 28-M27 | 36 | 1230 | 1160 | 32-M36 | 50 | ||
| 1200 | 1220 | 370 | 1405 | 1340 | 32-M30 | 40 | 1455 | 1380 | 36-M39 | 56 | |
| 1400 | 1420 | 1630 | 1560 | 36-M33 | 44 | 1675 | 1590 | 40-M45 | 62 | ||
| 1600 | 1620 | 380 | 1830 | 1760 | 40-M33 | 48 | 1915 | 1820 | 44-M45 | 68 | |
| 1800 | 1820 | 2045 | 1970 | 44-M36 | 50 | 2115 | 2020 | 48-M45 | 70 | ||
| 2000 | 2020 | 400 | 2265 | 2180 | 48-M39 | 54 | 2325 | 2230 | 52-M52 | 74 | |
| 2200 | 2220 | 2475 | 2390 | 52-M39 | 60 | 2550 | 2440 | 56-M52 | 80 | ||
| 2400 | 2420 | 2685 | 2600 | 56-M39 | 62 | 2760 | 2650 | 60-M52 | 82 | ||
| 2600 | 2620 | 450 | 40 | 2905 | 2810 | 60-M45 | 64 | 2960 | 2850 | 64-M52 | 88 |
| 2800 | 2820 | 3115 | 3020 | 64-M45 | 68 | 3180 | 3070 | 68-M56 | 94 | ||
| 3000 | 3020 | 3315 | 3220 | 68-M45 | 70 | 3405 | 3290 | 68-M56 | 100 | ||
| 3200 | 3220 | 3525 | 3430 | 72-M45 | 76 | ||||||
| 3400 | 3420 | 3735 | 3640 | 76-M45 | |||||||
| 3600 | 3620 | 3970 | 3860 | 80-M52 | |||||||
雙法蘭傳力接頭:由本體、密封圈、壓蓋、伸縮短管等主要部件組成。該產品適用于兩邊均與法蘭連接的管道中,安裝時調整產品兩端與法蘭的安裝長度,對角依次均勻擰緊壓蓋螺旋,使其中成為一個整體,并有一定的調節量,方便安裝維修時,根據現場尺寸進行調整。在工作時可以反軸向推力傳遞至整個管道。
Double Flanges Transmission Joint: Mainly composed of body, sealing-washer,gland,short slides,this product is applicable to pipes which connected with Flang on both sides,modulate the product'slength between Flange while installing, Screw down bolts after installation to integrate the structure and guarantee a certain shift which will facilitate the adjustment of size while installation. It can turn the axial thrust on the whole pipe.
專業制造、專業服務,駱盈為你創造更多價值 !
不斷提升服務質量,精益求精,“真誠的服務”是駱盈永恒的主題。駱盈嚴格按照 要求,質量嚴格把關,責任到人,確保生產、銷售、服務的健康運行。加強與用戶溝通,竭誠為廣大客戶提供優質產品,至善至美服務,特此駱盈做出如下承諾:
產品標準
產品嚴格按照中國 GB、HG 標準和美國 API 等標準設計、制造、驗收。密封面硬度達到規定要求,寬度超過標準。
售前服務
產品介紹,技術交流,非標產品設計,疑難解答。
售中服務
1、守信合同,保證及時供貨,隨時保持與客戶聯系
2、對特殊或復雜的產品,我廠安排技術人員對用戶進行產品使用、故障排除、調式及維修進行培訓和指導。
售后服務
1、駱盈產品質保期為自出廠起 12 個月,實行“三包”服務(包退、包換、包修)。
2、產品在使用中我廠定期組織技術、檢查人員進行訪問,征詢用戶對產品質量、使用狀況、改進意見等方面的反饋,以便進一步提高產品質量。
3、對用戶投訴產品質量問題,快速做出反映,售后服務人員在 24-36 小時(省外 48 小時)趕赴現場。
4、對售后服務,要求用戶填寫服務后的質量反饋表,并做出鑒定意見,共同提高駱盈的產品質量與服務質量。
1、客戶采購清單請傳真至 021-64207088 E-mail:luoying@luoyingsh.com,或來電咨詢 021-62212627。
2、收到客戶采購清單,為客戶提供產品型號選型與報價(價格清單)。
3、具體商定:交貨期、特殊要求等事宜。
訂貨須知
1、客戶對產品有特殊要求,須在訂貨合同中提供以下說明:
(1)結構長度
(2)連接形式
(3)公稱直徑、全通徑、縮徑、管道尺寸
(4)用介質及溫度、壓力范圍
(5)實驗、檢驗標準及其他要求本廠可根據客戶特殊要求配置定做和設計特殊產品。
2、本廠可根據客戶特殊要求配置定做和設計特殊產品。
3、如由客戶提供確定的產品類型和型號時,客戶應正確說明其型號的含義和要求,在供需雙方理解一致的條件下簽訂合同。
您也可以聯系在線客服